Immobiliensuche:

Wohnen mit Geschichte – Mitten am Siegburger Marktplatz

in Siegburg
1.900 €
Obj-Nr.: SiP-784
Ansprechpartner
Kim Löcher
02241 - 146 700 0
Anfrageformular
* Pflichtfelder
   Ihre Daten werden verschlüsselt übertragen und nicht an Dritte weitergegeben.
Beschreibung

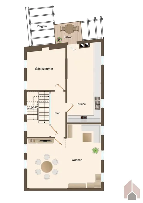
Auf rund 173 m² Wohnfläche, die sich über drei Etagen erstrecken, bietet diese Wohnung eine großzügige und durchdachte Aufteilung.
Im Erdgeschoss befindet sich der einladende Eingangsbereich, ergänzt durch ein Gäste-WC und ausreichend Platz für eine Garderobe.
Im ersten Obergeschoss befindet sich ein großzügiger Wohnbereich mit angrenzendem Essplatz. Die separate, sehr geräumige Küche ist bereits im Mietpreis enthalten und bietet direkten Zugang zum Balkon mit Blick in den Innenhof, der ausschließlich vom Mieter genutzt werden kann. Ergänzt wird diese Etage durch ein zusätzliches Gästezimmer.
Im zweiten Obergeschoss erwarten Sie ein Schlafzimmer mit angrenzender Ankleide, ein Badezimmer mit Badewanne, ein zusätzliches Duschbad sowie ein weiterer großzügiger Raum, der flexibel als Arbeits-, Gäste- oder Wohnbereich genutzt werden kann. Von diesem Bereich aus führt eine Treppe auf eine Empore, die derzeit als zusätzlicher Schlafplatz genutzt wird. Zudem besteht von hier Zugang zum Dachboden, der großzügigen Stauraum bietet.

Ein weiteres Highlight ist der großzügige Gewölbekeller, der der Wohnung zur alleinigen Nutzung zur Verfügung steht und viel Platz sowie eine besondere Atmosphäre bietet. Hinzu kommt ein kleiner Innenhof mit Garten, der trotz der zentralen Lage eine private Rückzugsmöglichkeit ins Grüne schafft.

Beheizt wird das gesamte Gebäude über eine zentrale Gasheizung, die sowohl die Wohnung als auch die im Erdgeschoss befindliche Gewerbeeinheit versorgt. Seit 2025 sorgen Wärmemengenzähler für eine transparente Verbrauchsabrechnung. Der Gasvertrag wird dabei eigenständig durch den Mieter abgeschlossen.

Direkte Stellplätze gibt es aufgrund der Lage am Siegburger Marktplatz nicht. In unmittelbarer Umgebung stehen jedoch Tiefgaragen zur Verfügung, in denen über die Stadt Siegburg je nach Verfügbarkeit Stellplätze angemietet werden können.

Mit seiner einzigartigen Mischung aus historischem Ambiente, großzügigem Wohnkomfort und einer Lage, die urbanes Leben mit Rückzugsmöglichkeiten verbindet, ist diese Wohnung ein echtes Unikat – ideal für alle, die das Besondere suchen.

Ausstattung

+ Einbauküche
+ Gäste-WC
+ 2 Bäder
+ Innenhof zur alleinigen Nutzung
+ Gewölbekeller
+ Gasheizung (Gasvertrag wird durch den Mieter abgeschlossen)
+ Lage in Fußgängerzone
+ Ältester profaner Steinbau Siegburgs
+ Pfarrhaus des 13. Jahrhunderts
+ Denkmalschutz
+ Verfügbar ab sofort

Lage

Siegburg – Zentrum:

Siegburg ist die Kreisstadt und der Verwaltungssitz des Rhein-Sieg-Kreises und liegt ca. 8 km östlich des Rheins in der Kölner Bucht. Angrenzend an das Bergische Land und das Siebengebirge zählt Siegburg mit aktuell etwa 43.000 Einwohnern zu den sogenannten Mittelstädten.
Die ruhige aber dennoch zentrale Lage der Stadt ist für viele Bewohner einzigartig. In den letzten Jahren erfreut sich Siegburg über steigende Bevölkerungszahlen, welche sich vor allem auch auf die jüngere Generation beziehen.
Der Namensgeber der Stadt ist die Sieg, die westlich von Siegburg in den Rhein mündet.

Die Stadt punktet in vielerlei Hinsicht für alle Generationen. Durch die Nähe zur A3 und A560 ist die Stadt für Berufspendler optimal gelegen: Die Nachbarstädte Hennef, Lohmar und Troisdorf sowie Köln und Bonn sind in wenigen Minuten mit dem Auto zu erreichen.

Vom Hauptbahnhof Siegburg/Bonn fährt die Bahnlinie 66 die Städte Bonn, Sankt Augustin und Königswinter an. Regelmäßige Züge fahren zudem Richtung Köln und auch Richtung Au an der Sieg. Seit 2003 ist Siegburg an die ICE-Schnellfahrstrecke Köln–Rhein/Main angebunden und liegt somit auch für Bahnpendler optimal.

Schöne Wanderwege wie z.B. der Siegsteig und verschiedene Fahrradstrecken befinden sich in direkter Umgebung der Immobilie. Einkaufsmöglichkeiten, Schulen und Kindergärten sind auch fußläufig zu erreichen.

Die Stadt Siegburg ist, neben den großzügigen Freizeitangeboten wie beispielsweise dem nahegelegenen Schwimmbad mit großer Außenfläche, auch für eine Stadt mit besonderem Wohnwert bekannt.

Sonstiges

Liebe Immobilienbesitzer und die, die es werden möchten,

als inhabergeführtes Familienunternehmen stellen wir uns in besonderem Maße auf Sie und Ihre individuellen Wünsche ein.
Wir unterstützen Sie vollumfänglich bei Kauf und Verkauf sowie Vermietung Ihrer Immobilie.

Für Ihre Fragen stehen wir Ihnen – auch im Vorfeld und in der Nachbetreuung – gerne zur Verfügung.
Wir freuen uns über Ihre unverbindliche Kontaktaufnahme.

Objektangaben
Kaltmiete
1.900 €
Warmmiete
2.440 €
Nebenkosten
540 €
Kaution
3.800 €
Wohnfläche
173 m²
Zimmer
5
Anzahl Zimmer
5
Anzahl Schlafzimmer
4
Anzahl Badezimmer
2
Anzahl separate WCs
1
Anzahl Balkone
1
verfügbar ab
ab sofort
Preis
Auf Anfrage
Energieausweis
Energieausweis
nicht_noetig
Befeuerungsart
Gas
Heizungsart
Zentralheizung
Karte

Sie sehen gerade einen Platzhalterinhalt von Google Maps. Um auf den eigentlichen Inhalt zuzugreifen, klicken Sie auf die Schaltfläche unten. Bitte beachten Sie, dass dabei Daten an Drittanbieter weitergegeben werden.

Mehr Informationen

Ähnliche Immobilien

Hausansicht
neu
1.175 €
53773 
Hennef
3-Zimmerwohnung im Herzen von Hennef
Badezimmer: 1
  ·  
Zimmer: 3
  ·  
Stellplätze: 1
Schlafzimmer
850 €
53783 
Eitorf
Großzügige 3-Zimmer-Wohnung mit Balkon in ruhiger Lage von Obereip
Badezimmer: 1
  ·  
Zimmer: 3
  ·  
Stellplätze: 1
Außenansicht
680 €
53783 
Eitorf
Lichtdurchflutet & Ruhig – Mietwohnung in Eitorf-Bitze
Badezimmer: 1
  ·  
Zimmer: 2
  ·  
Wohnfl.: 80 m²
Ihr neues Zuhause?!
vermietet
1.200 €
53783 
Eitorf
DHH mit Carport und schönem Garten in beliebter Lage von Eitorf-Halft
Badezimmer: 2
  ·  
Zimmer: 4
  ·  
Stellplätze: 1
DG I Wohnbereich
vermietet
1.010 €
53721 
Siegburg
Einzigartige Dachgeschosswohnung mit Galerie und Panoramablick auf den Michaelsberg
Badezimmer: 1
  ·  
Zimmer: 2.5
  ·  
Stellplätze: 1
Titelbild
vermietet
1.395 €
53639 
Königswinter
Traumwohnung kombiniert mit Traumblick...3,2,1..meins!
Badezimmer: 2
  ·  
Zimmer: 3.5
  ·  
Stellplätze: 2
Titelbild
vermietet
1.700 €
53721 
Siegburg
Wohnen in bester Lage ...
Badezimmer: 2
  ·  
Zimmer: 3
  ·  
Stellplätze: 1
Visualisierung hinten
vermietet
1.500 €
53721 
Siegburg
Neubau ETW in Siegburg - Brückberg
Badezimmer: 1
  ·  
Zimmer: 4
  ·  
Stellplätze: 1
Außenansicht
vermietet
725 €
53859 
Niederkassel
Großzügige Mietwohnung in Niederkassel-Mondorf
Badezimmer: 1
  ·  
Zimmer: 3
  ·  
Stellplätze: 1
Hausansicht
neu
1.175 €
53773 
Hennef
3-Zimmerwohnung im Herzen von Hennef
Badezimmer: 1
  ·  
Zimmer: 3
  ·  
Stellplätze: 1
Schlafzimmer
850 €
53783 
Eitorf
Großzügige 3-Zimmer-Wohnung mit Balkon in ruhiger Lage von Obereip
Badezimmer: 1
  ·  
Zimmer: 3
  ·  
Stellplätze: 1
Außenansicht
680 €
53783 
Eitorf
Lichtdurchflutet & Ruhig – Mietwohnung in Eitorf-Bitze
Badezimmer: 1
  ·  
Zimmer: 2
  ·  
Wohnfl.: 80 m²
DG I Wohnbereich
vermietet
1.010 €
53721 
Siegburg
Einzigartige Dachgeschosswohnung mit Galerie und Panoramablick auf den Michaelsberg
Badezimmer: 1
  ·  
Zimmer: 2.5
  ·  
Stellplätze: 1
Titelbild
vermietet
1.395 €
53639 
Königswinter
Traumwohnung kombiniert mit Traumblick...3,2,1..meins!
Badezimmer: 2
  ·  
Zimmer: 3.5
  ·  
Stellplätze: 2
Titelbild
vermietet
1.700 €
53721 
Siegburg
Wohnen in bester Lage ...
Badezimmer: 2
  ·  
Zimmer: 3
  ·  
Stellplätze: 1
Visualisierung hinten
vermietet
1.500 €
53721 
Siegburg
Neubau ETW in Siegburg - Brückberg
Badezimmer: 1
  ·  
Zimmer: 4
  ·  
Stellplätze: 1
Außenansicht
vermietet
725 €
53859 
Niederkassel
Großzügige Mietwohnung in Niederkassel-Mondorf
Badezimmer: 1
  ·  
Zimmer: 3
  ·  
Stellplätze: 1